相關產品
一、空氣負氧離子監測站產品簡介
空(kong)氣(qi)負(fu)氧(yang)(yang)離(li)(li)子(zi)監(jian)測站(zhan)是一款用(yong)于(yu)氣(qi)象天然氧(yang)(yang)吧、林業森(sen)林康養(yang)、優(you)美文旅公園、智(zhi)慧(hui)景區、生態環保(bao)、等(deng)領域(yu)的集(ji)負(fu)氧(yang)(yang)離(li)(li)子(zi)、PM2.5、PM10、溫度、濕度、風速、風向、等(deng)實(shi)時(shi)(shi)在線監(jian)測與智(zhi)能LED發布系統。空(kong)氣(qi)負(fu)氧(yang)(yang)離(li)(li)子(zi)監(jian)測站(zhan)可(ke)全天候監(jian)測空(kong)氣(qi)中負(fu)氧(yang)(yang)離(li)(li)子(zi)濃度,同時(shi)(shi)可(ke)根(gen)據用(yong)戶需求(qiu)擴展監(jian)測項目(mu),模塊化結構設計,傳感器都可(ke)以(yi)單獨替換,配(pei)備專業安裝(zhuang)支架,現場可(ke)通過LED屏幕直接讀取數據,亦可(ke)遠程(cheng)云平臺/WEB/微信公眾號實(shi)時(shi)(shi)查看數據,后(hou)期運營維(wei)護方便。
二(er)、空氣負氧離子監測站應用范圍
旅游景(jing)區(qu)、生態(tai)莊園(yuan)(yuan)、濕地公園(yuan)(yuan)、瀑布公園(yuan)(yuan)、森林公園(yuan)(yuan)、自然(ran)保護(hu)區(qu)、售(shou)樓處、學校
三、空氣負氧離(li)子監測(ce)站技術(shu)參數(shu)
1、風速:測量原(yuan)理超聲波,0~60m/s(±0.1m/s)分辨率0.01m/s;(發明專利,專利號ZL 2021 1 0237536.5)
2、風向:測量原理超聲波,0~360°(±2°)分辨率1°;(發明專(zhuan)利(li),專(zhuan)利(li)號ZL 2021 1 0237536.5)
3、空(kong)氣溫(wen)度:測量(liang)原(yuan)理(li)二極管結電(dian)壓(ya)法,-40-60℃(±0.3℃)分辨率0.01℃;(北京市(shi)氣象局(ju)校準證書(shu))
4、空氣(qi)濕(shi)度(du):測量原(yuan)理電(dian)容式,0-100%RH(±0.3%RH)分辨率0.1%RH;(北京市氣(qi)象局校準證書(shu))
5、大氣(qi)壓力:測量(liang)原理壓阻(zu)式,300-1100hpa(±0.25%),分(fen)辨率0.1hpa;(北京市氣(qi)象局校準證書)
6、PM2.5:測(ce)量原理(li)光散射(she),0-1000ug/m3(±10%)分辨率1ug/m3
7、PM10:測量原(yuan)理光(guang)散(san)射,0-1000ug/m3(±10%)分(fen)辨率1ug/m3
8、噪聲:測(ce)量原(yuan)理電容式,30-120dB(±1.5dB)分(fen)辨(bian)率0.1db
9、負(fu)氧離子:測量原理圓筒式電極吸入(ru)式,0-10萬(wan)個/cm3(±10%)分辨率1個/cm3
10、氧含量(liang):測量(liang)原(yuan)理(li)電(dian)化學,0~25%Vol(±3%FS)分辨率(lv)0.1%
11、數據存(cun)儲:可存(cun)儲一年的原始監(jian)測(ce)數據;
12、數(shu)據(ju)傳輸:GPRS/4G/光纖
13、功耗:800w
14、供電(dian)方式:220V市電(dian)、太陽能(選配)
15、工作環(huan)境:溫度(du)-40℃-60℃,濕度(du)0%-100%
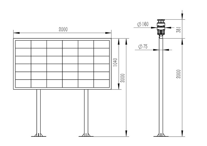
16、屏(ping)幕(mu):2m*1米,由(you)36塊P10單紅單元板拼接而成,單元板尺寸32cm*16cm
17、立桿:碳鋼雙立柱,每根(gen)立柱由2根(gen)1.5米立桿法蘭(lan)盤對接而成,可耐受(shou)15級強臺(tai)風
18、生產企業(ye)具有ISO質量管理體系(xi)(xi)、環(huan)境管理體系(xi)(xi)和職業(ye)健(jian)康管理體系(xi)(xi)認證
19、生產企業具有(you)計(ji)算(suan)機軟件注(zhu)冊證書(shu)
20、生產企業為3A級信用企業
四(si)、空氣(qi)負氧(yang)離子監(jian)測站產(chan)品特點
1、集成度高,方案靈活:系統(tong)可集成負氧離子(zi)、空氣(qi)溫度、空氣(qi)濕度、PM2.5、PM10、大氣(qi)壓力、氧含(han)量、噪(zao)聲、風速、風向
2、系統(tong)穩定(ding):已合(he)作(zuo)上千家(jia)公園景區,后臺(tai)運行穩定(ding),免維護,故障率(lv)低
3、多種傳(chuan)輸(shu):可根(gen)據現場網絡情況定制傳(chuan)輸(shu)方式,2G/4G/光纖
4、支(zhi)持擴(kuo)展:支(zhi)持傳感器擴(kuo)展,485接口(kou)、modbus協議傳感器都可以直接使用
5、顯示(shi)方(fang)案多(duo)(duo)樣:可根據現場需求,選用點(dian)對(dui)點(dian)、點(dian)對(dui)多(duo)(duo)、多(duo)(duo)對(dui)點(dian)的LED屏幕數據顯示(shi)方(fang)案
五(wu)、空氣負氧(yang)離子監(jian)測站產品結(jie)構(gou)圖

六、空(kong)氣負氧離子監測站產品尺寸圖

七、空氣負氧離子監測站云(yun)平臺(tai)介紹(shao)
1、CS架構軟件平臺,支(zhi)持手機、PC瀏覽器直接觀測(ce)、無需額外安裝軟件。
2、支持多帳號、多設備登錄
3、支持實時(shi)數據展(zhan)(zhan)示與歷史數據展(zhan)(zhan)示儀(yi)表板
4、云(yun)服務器、云(yun)數據存儲,穩(wen)定(ding)可靠,易(yi)于擴(kuo)展(zhan),負載(zai)均衡。
5、支持短信報警及閾值設置
6、支(zhi)持地圖顯示、查看設備信息。
7、支持數據曲(qu)線分析(xi)
8、支持數(shu)據導(dao)出(chu)表格形(xing)式(shi)
9、支持數據轉發,HJ-212協議(yi),TCP轉發,http協議(yi)等。
10、支持數據(ju)后處理(li)功能(neng)
11、支持外置運行javascript腳本
本文地址://txwjc188.com/1260.html




風途首頁
電話咨詢
產品中心