相關產品
一、氣象監測系統產品簡介
氣(qi)(qi)象(xiang)(xiang)監測(ce)(ce)系(xi)統又稱氣(qi)(qi)象(xiang)(xiang)站監測(ce)(ce)系(xi)統、氣(qi)(qi)象(xiang)(xiang)環境在線監測(ce)(ce)系(xi)統,氣(qi)(qi)象(xiang)(xiang)監測(ce)(ce)系(xi)統是一款基于物聯網技術(shu)和無(wu)線通(tong)訊(xun)技術(shu)研發(fa)而成(cheng)無(wu)人值守氣(qi)(qi)象(xiang)(xiang)多要(yao)素(su)自動氣(qi)(qi)象(xiang)(xiang)站,通(tong)過傳感器監測(ce)(ce)環境的要(yao)素(su)信息。FT-QC10氣(qi)(qi)象(xiang)(xiang)監測(ce)(ce)系(xi)統是一款高(gao)度集(ji)成(cheng)、低功耗、可快速安裝、便于野外監測(ce)(ce)使(shi)用的高(gao)精(jing)度氣(qi)(qi)象(xiang)(xiang)觀測(ce)(ce)設(she)備。
該設備由氣象傳(chuan)感器(qi),采(cai)集器(qi),太陽能供電系統,立桿(gan)支架,云平(ping)臺五部分組成。免調(diao)試,可(ke)快速(su)布置,廣(guang)泛運用于(yu)氣象、農業、林(lin)業、環保、海洋、機(ji)場(chang)、港(gang)口、科學(xue)考察、校園教育等領域。
二、氣象(xiang)監測(ce)系統產品特(te)點
1、低功耗(hao)(hao)采(cai)集(ji)器(qi):靜態功耗(hao)(hao)小于50uA
2、標配GPRS聯網、支持擴展藍牙、有(you)線傳輸
3、7寸安卓觸屏,版本:4.4.2、四核(he)Cortex?-A7,512M/4G(選(xuan)配)
4、支持modbus485傳感(gan)器(qi)擴展
5、太(tai)陽能充電管(guan)理MPPT自動功(gong)率點跟蹤
6、三米碳鋼(gang)支架,兩節法蘭盤(pan)對接
7、短(duan)信報警,超限后向指定的手機上發送短(duan)信
8、不銹鋼材質防護箱,耐腐蝕、抗氧化,防水等級IP66
三、氣(qi)象監測系統技術參數
1)采集(ji)器(qi)供電(dian)接口(kou):GX-12-3P插頭,輸入電(dian)壓5V,帶(dai)RS232輸出Json數據格式,采集(ji)器(qi)供電(dian):DC5V±0.5V峰值電(dian)流1A,
2)傳感器modbus、485接口(kou):GX-12-4P插(cha)頭,輸(shu)出(chu)供電電壓12V/1A,設(she)備配(pei)置(zhi)接口(kou):GX-12-4P插(cha)頭,輸(shu)入電壓5V
3)太(tai)陽能供(gong)電、配置鉛酸電池,可選配30W 20AH/50W 40AH/100W 100AH.充電控制器(qi):150W,MPPT自動功率(lv)點跟蹤,效率(lv)提高20%
4)數(shu)據(ju)上傳間隔(ge):1分鐘-1000分鐘可調
5)7寸(cun)(cun)安卓觸屏,屏幕尺寸(cun)(cun):1024*600 RGB LCD(選配)
6)部分傳感器參數
名 稱 | 測量范圍 | 分 辨 率 | 準(zhun) 確 度 |
環境溫度 | -40~+60℃ | 0.01℃ | ±0.3℃ |
相對濕度 | 0~100%RH | 0.1%RH | ±3%RH |
光照強度 | 0-200000Lux | 1Lux | ±2% |
大氣壓力 | 3300-1100hpa | 0.1HPa | ±0.3HPa |
露點溫度 | -20~+50℃ | 0.1℃ | ±0.5℃ |
土壤溫度 | -50~+80℃ | 0.1℃ | ≤±0.2℃ |
土壤濕度 | 0~100% | 0.1% | ±2% |
土壤鹽分 | 0-20ms | ±0.1ms | ±2% |
土壤PH | 0-14 | 0.1 | ±0.2% |
風 向 | 0~360°(16方(fang)向) | 1/16 | <3°(>1.0m/s) |
風 速 | 0~30m/s | 0.01m/s | ±(0.1+0.03V)m/s |
雨 量(liang) | ≦4mm/min | 0.01mm | ±0.2mm |
紫外輻(fu)射 | 0~70W/㎡ | 1W/㎡ | ±2% W/㎡ |
日照時數 | 0~24h | 0.1 h | ±2%h |
總輻射 | 0-2000W/m2 | 0.1W/m2 | 光譜范圍:300-3000nm |
光合有效輻射 | 400~700nm | 靈 敏 度:10~50μv/μmol·m-2·s-1 | |
7)整機取得國家氣象計量(liang)站校準證書(shu)
8)生產企業具(ju)有ISO質量(liang)管理體系、環(huan)境管理體系和職業健康管理體系認證
9)生(sheng)產(chan)企業具(ju)有計算(suan)機軟件注冊證書
10)生產企業(ye)為(wei)3A級信用企業(ye)
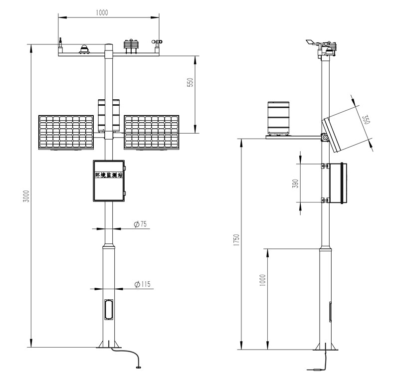
四、氣象監測系統(tong)產品尺寸圖

五、氣象監測系(xi)統產品結構圖

六、氣(qi)象監測系統上位機(ji)軟件介紹
1、PC單機版(ban)數據接(jie)收、存儲、查看、分析軟件(jian)
2、支持串口數據接收、處理、展示
3、支持json字符串、modbus485等(deng)通(tong)信方式
4、可自設置存(cun)儲(chu)時間,modbus485采集模式下可自設置采集時間
5、支持自助增加、刪除、修改監測參(can)數(shu)的協(xie)議、名稱、圖標等
6、支持(chi)數據后處理功能
7、支持(chi)外置(zhi)運行javascript腳本
七、氣象監測(ce)系統(tong)安卓APP介紹
1、安卓(zhuo)單(dan)機版(ban)數據(ju)接收、存儲、查看、分析軟件
2、支持藍(lan)牙(ya)數據接(jie)收
3、手(shou)機(ji)休眠后軟件后臺接收、處理
4、json數據自動添加(jia)設備,modbus設備支持掃碼(ma)添加(jia)設備
5、支(zhi)持歷(li)史數據查(cha)看、分析(xi)、導出表格,支(zhi)持曲(qu)線展示、單數據點查(cha)看。
6、支持(chi)數據后處理功能
7、支持外置運(yun)行javascript腳本
八、氣象監測系統云平(ping)臺(tai)介紹
1、CS架構(gou)軟件(jian)平(ping)臺,支持手機(ji)、PC瀏覽器直接觀測、無需額(e)外安裝軟件(jian)。
2、支持多帳(zhang)號、多設備登錄
3、支持實時數據(ju)展示(shi)與(yu)歷(li)史數據(ju)展示(shi)儀表板
4、云服務器、云數據存儲,穩定可靠(kao),易于擴展,負載(zai)均衡。
5、支(zhi)持(chi)短信報(bao)警(jing)及閾值設置
6、支持(chi)地圖顯示、查(cha)看設備(bei)信(xin)息。
7、支持數(shu)據曲線分析
8、支(zhi)持數據導出表格形式
9、支持數據(ju)轉(zhuan)發(fa),HJ-212協議(yi)(yi),TCP轉(zhuan)發(fa),http協議(yi)(yi)等。
10、支持數據后處(chu)理功能(neng)
11、支持外置運(yun)行javascript腳(jiao)本
本文地址://txwjc188.com/1298.html




風途首頁
電話咨詢
產品中心