相關產品
一、裂縫監測站產品簡介
裂(lie)(lie)縫(feng)(feng)(feng)監(jian)測(ce)站又稱自動遠程(cheng)裂(lie)(lie)縫(feng)(feng)(feng)測(ce)寬儀,裂(lie)(lie)縫(feng)(feng)(feng)監(jian)測(ce)站主(zhu)要(yao)用于監(jian)測(ce)滑坡(po)體(ti)表(biao)(biao)面裂(lie)(lie)縫(feng)(feng)(feng)變(bian)化情況,進行(xing)動態監(jian)測(ce),為結構(gou)物表(biao)(biao)面裂(lie)(lie)縫(feng)(feng)(feng)等(deng)可視病害的檢測(ce)提供解決(jue)方案。本產品廣泛應用于地(di)(di)質災害、巖(yan)土工(gong)程(cheng)、建筑工(gong)程(cheng)、交通、水利、市政(zheng)等(deng)多個監(jian)測(ce)領域,特別適(shi)用于地(di)(di)表(biao)(biao)裂(lie)(lie)縫(feng)(feng)(feng)、卸(xie)荷裂(lie)(lie)隙、房屋或結構(gou)裂(lie)(lie)縫(feng)(feng)(feng)等(deng)相對位移(yi)的精確監(jian)測(ce)。
在地質災害監(jian)測(ce)中,能(neng)夠實時捕捉地表(biao)裂縫的微小變化,為滑(hua)坡、崩塌等災害預警(jing)提供(gong)關鍵數據;在巖土工程(cheng)中,可有效監(jian)測(ce)卸荷裂隙(xi)的發展趨勢(shi),確保工程(cheng)安全;
在(zai)建(jian)筑工程領域(yu),能(neng)夠精準檢測房屋或結構裂縫(feng)的(de)位移(yi)情況,為(wei)建(jian)筑物(wu)的(de)健康診斷和維護提(ti)供科(ke)學(xue)依據;
在交通、水(shui)利(li)和市政工程中,同樣能夠發揮重要作用,確保基礎設施的長期穩(wen)定(ding)運行。
通(tong)過高精(jing)度的監測數(shu)據,幫助用戶及時(shi)采取應(ying)對措施(shi),降低風險,保障工程(cheng)和(he)人員安全。
二、裂縫(feng)監測站技術參(can)數
| 量程 | 0-1000mm |
| 精度 | ±0.02%F.S |
| 響應時間 | 1s |
| 外殼材質 | ABS |
| 供電電壓 | 12-24VDC(0.4W@12V) |
| 通訊方式 | modbus-485 |
| 太陽能板功率 | 8W |
| 太陽能板標準工作電壓 | DC5V |
| 內置鋰電池容量 | 5000mAh |
| 支架材質 | 不銹鋼 |
| 采集器 | 帶3年流量 |
| 數據傳輸 | 標配每10分鐘傳輸一次,支持定制 |
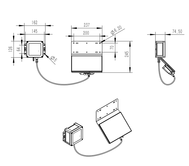
三、裂縫(feng)監測站(zhan)產品尺(chi)寸(cun)圖

本文地址://txwjc188.com/3101.html




風途首頁
電話咨詢
產品中心